Click to hide image
Click to hide image
Click to hide image
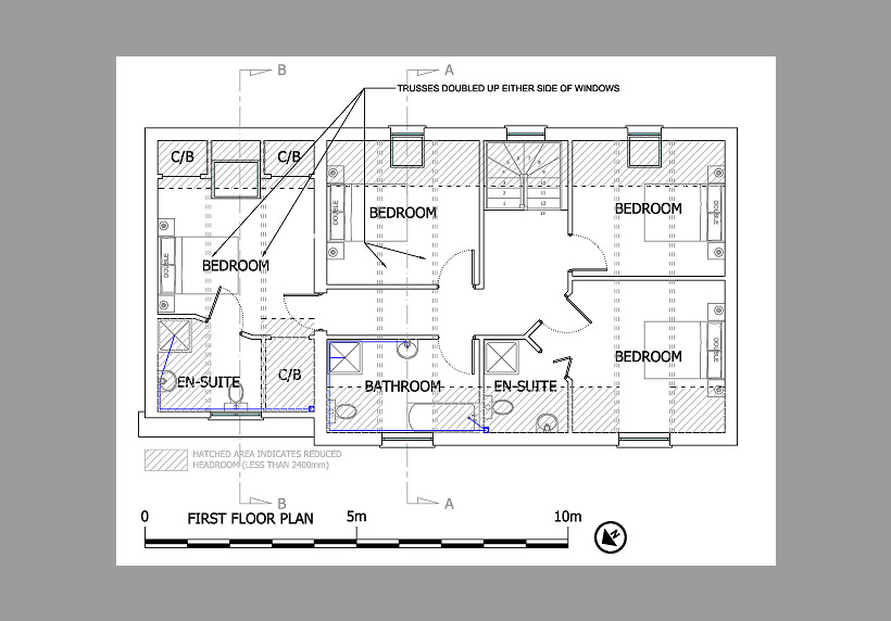
Our Work - Case Study Six

New-build house as replacement for an old barn, Walton East
This project involved the design of a new house together with obtaining Planning Permission and Building Regulations approval.

 
 
   

CLICK ON A THUMBNAIL TO VIEW AN IMAGE - CLICK ON LARGE IMAGE TO CLOSE



Illustrated by Michael Howlett

Call now on 07826 705 493 for a free consultation
Website created by foliozine